2 bed cottage for sale in Totnes, Devon, TQ9 SSTC

£ 265,000/
Cottage, 66 Fore Street, Totnes, Devon, TQ9 5RX, England
  (0/5) / 143
  • IMG_1071
  • IMG_1059
  • IMG_1066
  • IMG_1076
  • IMG_1080
  • IMG_1095
  • IMG_1090
  • IMG_1102
  • IMG_1113
  • IMG_1100
  • IMG_9075
  • EPC
  • EPC
  • 1 Cottage, 66 Fore S
1 Receptions
2 Beds
1 Baths
£ 265,000/
Woods Homes Totness

Woods Homes Totness

Phone


View ratings and reviews for this agent:
No entries were found

Monthly Budget Calculator

Can you afford this property?

Description

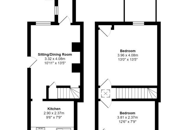
A centrally located character home, tucked away from Totnes High Street with roof garden and accommodation comprising sitting/dining room, kitchen, two bedrooms and shower room and is offered for sale with no onward chain.

An ideally located cottage in central Totnes, along a passage off Fore Street leading to a timber front door that opens into the sitting room with engineered wood flooring, feature fireplace, radiator, an opening to the kitchen, door to inner hall and stairs rising to the first floor. The kitchen is well fitted with a range of wall and base level units, with roll edge work surfaces and tiled splash areas. There is a built in electric oven with induction hob over, space for fridge/freezer, space and plumbing for washing machine and space for tumble dryer. There is a single bowl sink and drainer, ceramic tiled flooring and a window to the front of the property. From the inner hall a door opens into the shower room which is fully tiled and fitted with suite comprising low level WC, wash hand basin set into vanity unit and large shower cubicle with raindrop shower. There is a heated towel rail/radiator and an obscured window.
On the first floor and accessed from the landing are two double bedrooms. Bedroom one is the larger of the two rooms, has a built in cupboard and is currently being used as a reception room, making the most of the South facing double glazed window which opens to provide access to the decked roof garden. There is wooden flooring, feature fireplace and vertical radiator. Bedroom two has a sash window to the front of the property and radiator.
Outside, the decked garden is a real delight, with space for pots and plants it provides a great opportunity to sit out and enjoy the sunshine from the South.
1 Cottage is freehold and is connected to all mains services with gas fired central heating.
The property is Grade II Listed.
Council Tax band: C - South Hams District Council

Rooms

Reception rooms
1
Bed
2
Bathrooms
1

DETAILS

UPRN :  10004743135
FEATURES:
  • A centrally located, well presented, character home tucked away off Fore Street
  • Front door opening to the sitting room
  • Well fitted kitchen
  • Ground floor fully tiled shower room
  • Two double bedrooms
  • Roof garden
  • No onward chain

 Related properties

Nearby properties
2 bed cottage for sale in Totnes, Devon, TQ9
Buy Guide Price £550,000
Tudor Cottage, Atherton Lane, Totnes, Devon, TQ9 5RT, England
1 bed flat for rent in Totnes, Devon, TQ9
Rent £ 725/PCM
Blue Ball, The Grove, Totnes, Devon, TQ9 5ED, England
2 bed flat for sale in Totnes, Devon, TQ9
Buy £ 250,000/
Fore Street, Totnes, Devon, TQ9 5RP, England