2 bed semi-detached bungalow for sale in Newton Abbot, Devon, TQ12 SSTC

£ 289,950/
Tweenways, Kingsteignton, Newton Abbot, Devon, TQ12 3ES, England
  (0/5) / 197
  • P1020405
  • P1020382
  • P1020383
  • P1020392
  • P1020395
  • P1020384
  • P1020388
  • P1020413
  • P1020414
  • P1020415
  • 41Tweenways-High
1 Receptions
2 Beds
1 Baths
£ 289,950/
Woods Homes Sales (Teignbridge)

Woods Homes Sales (Teignbridge)

Phone


View ratings and reviews for this agent:
No entries were found

Monthly Budget Calculator

Can you afford this property?

Description

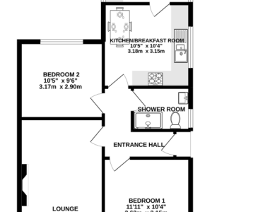
A spacious two bedroom semi-detached bungalow with garage and garden.

A well presented two bedroom semi-detached bungalow which has been lovingly maintained by the current owners. The accommodation comprises of a kitchen/breakfast room, lounge/diner, conservatory/utility room, two double bedrooms and a modern shower room. There is a garage, driveway parking, front and rear gardens and lovely oak doors throughout.

On approaching the property, the driveway leads to the garage and the side/front door of the bungalow. The front garden is predominantly laid to paving slabs which can be used for additional parking.

A UPVC obscured double glazed front door takes you into the hallway where oak doors take you into all the rooms. There is a radiator and a hatch providing access into the loft space.

The kitchen/breakfast room has a range of white base and wall units, drawers unit, fitted worktop surfaces with tiled surrounds and a one and a half bowl stainless steel single drainer sink unit with a double glazed window above. There are spaces for a freestanding gas cooker, with extractor over, and an automatic washing machine. A wall mounted gas fired boiler runs the central heating and hot water systems. A UPVC double glazed window looks into the conservatory and an oak door takes you into the conservatory.

The conservatory is currently used as a utility room and has UPVC double glazed windows, with a tilt and turn double glazed door taking you into the rear garden.

The lounge/diner has a front aspect double glazed window, a radiator and a focal fireplace with marble effect over mantle and hearth, a stone surround incorporating display areas and an inset coal effect gas fire.

Both the bedrooms are good sized doubles and have UPVC double glazed windows and radiators.

The re-fitted modern shower room has a double shower cubicle with fully tiled walls, a wall mounted chrome shower with large shower head, a floating wash hand basin with chrome fittings and a lighted mirror above, a low flush WC, heated towel rail, and a white gloss tall cupboard, ideal for storing towels etc. The walls are fully tiled and there is a side aspect obscured double glazed window.

Outside; the rear garden, accessed off the conservatory/utility room has an area laid to paving slabs with the remainder of the garden laid to artificial grass for ease of maintenance. The garden offers a good degree of privacy and sunshine. A side door from the garden takes you into the garage.

The garage has an up and over door, power, light, a window and a courtesy door into the garden.

Council Tax Band C for the period 01/04/2023 to 31/03/2024 financial year is £ 2,012.73

Rooms

Reception rooms
1
Bed
2
Bathrooms
1

DETAILS

UPRN :  100040335344
Tenure type :  Freehold
FEATURES:
  • A Well Presented Bungalow
  • Kitchen/Breakfast Room
  • Lounge/Diner
  • Conservatory/Utility Room
  • Two Double Bedrooms
  • Modern Shower Room
  • Front And Rear Gardens
  • Garage And Driveway Parking

Important Information

Important Information

 Related properties

Nearby properties
2 bed terraced for rent in Newton Abbot, Devon, TQ12
Rent £ 975/PCM
Honeypin House, Venn Orchard, Kingsteignton, Newton Abbot, Devon, TQ12 3GG, England
2 bed end of terrace for sale in Newton Abbot, Devon, TQ12
Buy £ 240,000/
Exeter Road, Kingsteignton, Newton Abbot, Devon, TQ12 3HU, England
3 bed terraced for sale in Newton Abbot, Devon, TQ12
Buy £ 220,000/
Clifford Street, Kingsteignton, Newton Abbot, Devon, TQ12 3HD, England