Barn Conversion


Category properties
Buy
3 bed barn conversion for sale in Totnes, Devon, TQ9
£ 360,000/

Larch Cottage, Hemsford, Littlehempston, Totnes, Devon, TQ9 6NE, England

A well presented barn conversion situated in a rural spot just outside of Littlehempston, a ..
 3
 2

Woods Homes Totness

01803 866336

Buy
5 bed barn conversion for sale in Brixham, Devon, TQ5
£ 400,000/

Perrymill Cottage, Stoke Gabriel Road, Galmpton, Brixham, Devon, TQ5 0NQ, England

A character semi detached five bedroom converted mill in need of modernisation located in a ..
 5
 2

Woods Homes Totness

01803 866336

Buy
2 bed barn conversion for sale in Totnes, Devon, TQ9
£ 285,000/

Granary Cottage, Old Hazard Cottages, Harberton, Totnes, Devon, TQ9 7LN, England

Offered for sale with no onward chain is this two bedroom barn conversion situated a ..
 2
 1

Woods Homes Totness

01803 866336

Buy
3 bed barn conversion for sale in Abbotskerswell, Devon, TQ12
£ 279,950/

Court Farm Barns, Wilton Way, Abbotskerswell, Devon, TQ12 5PG, England

A three bedroom character home, with garage and a courtyard garden, situated in the sought ..
 3
 1

Woods Homes Sales (Teignbridge)

01626853940

Buy
2 bed barn conversion for sale in Newton Abbot, Devon, TQ12
£ 300,000/

Byre Cottage, Manor Gardens, Abbotskerswell, Newton Abbot, Devon, TQ12 5RB, England

A charming two bedroom Barn Conversion with delightful gardens and open views, situated in the ..
 2
 1

Woods Homes Sales (Teignbridge)

01626853940

Buy
3 bed barn conversion for sale in Totnes, Devon, TQ9
£ 420,000/

Swallow Cottages, Marland Farm, Totnes, Devon, TQ9 6LS, England

Tucked away down a long shared drive is this prestigious barn conversion offering a master ..
 3
 2

Woods Homes Totness

01803 866336

Buy
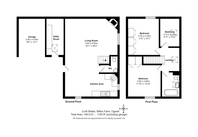
3 bed barn conversion for sale in Ogwell, Devon, TQ12
£ 335,000/

Croft Stable, Milton Farm, Ogwell, Devon, TQ12 6AT, England

A beautiful three-bedroom barn conversion with a number of character features, open plan living space, ..
 3
 1

Woods Homes Sales (Teignbridge)

01626853940

Buy
2 bed barn conversion for sale in Newton Abbot, Devon, TQ13
Guide Price £200,000

Lot , Barn adjacent to Hill Crest, Station Road, Trusham, Newton Abbot, Devon, TQ13 0NL, England

For Sale by Private Treaty Property & Land at Hill Crest, Station Road, Trusham, offered ..
 2
 1

Woods Homes Sales (Teignbridge)

01626853940

Buy
2 bed barn conversion for sale in Chudleigh, Devon, TQ13
£ 350,000/

The Old Barn, Mistletoe View, Chudleigh, Devon, TQ13 0GL, England

A newly completed two double bedroom barn conversion finished to a high standard, located within ..
 2
 2

Woods Homes Sales (Teignbridge)

01626853940

Buy
3 bed barn conversion for sale in Chudleigh, Devon, TQ13
£ 499,950/

Oak Barn, Bellamarsh, Kingsteignton Road, Chudleigh, Devon, TQ13 0AJ, England

A detached three bedroom reverse level Barn conversion with a 1.4 acre paddock and outbuildings, ..
 3
 1

Woods Homes Sales (Teignbridge)

01626853940

Rent
2 bed barn conversion for rent in Chudleigh, Devon, TQ13
£ 725/PCM

The Dairy Barn, 23c New Exeter Street, Chudleigh, Devon, TQ13 0DB, England

Available 11th August 2025. This two bedroom barn conversion with enclosed courtyard is located in ..
 2
 1

Woods Homes Lettings – Teignbridge

01626 364700

Rent
2 bed barn conversion for rent in Newton Abbot, Devon, TQ13
£ 800/PCM

The Shippon, Broadway, Trusham, Newton Abbot, Devon, TQ13 0LX, England

Available 1st June 2024. A quaint two bedroom barn conversion located in the beautiful village ..
 2
 1

Woods Homes Lettings – Teignbridge

01626 364700

Rent
2 bed barn conversion for rent in Stafford, Staffordshire, ST19
£ 1,200/PCM

Applejack, Watling Street, Stretton, Stafford, Staffordshire, ST19 9QY, England

A beautifully unique barn conversion set in the heart of the Staffordshire countryside, right beside ..
 2
 2

KeyAngels

01952 780053