3 bed end of terrace for sale in Kingsteignton, Devon, TQ12 SSTC

£ 335,000/
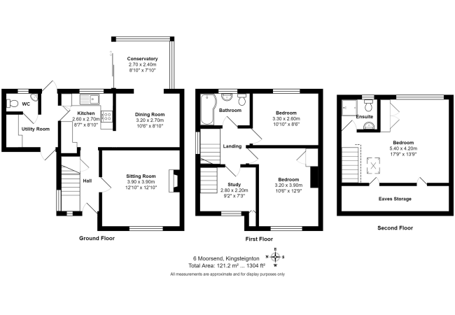
Moorsend, Kingsteignton, Devon, TQ12 3JY, England
  (0/5) / 177
  • IMG_8812
  • IMG_8741
  • IMG_8770
  • IMG_8743
  • IMG_8750
  • IMG_8796
  • IMG_8775
  • IMG_8772
  • IMG_8763
  • IMG_8780
  • IMG_8786
  • IMG_8793
  • IMG_8794
  • IMG_8803
  • IMG_8764
  • IMG_8799
  • EPC
  • EPC
  • 6 Moorsend, Kingstei
1 Receptions
3 Beds
2 Baths
£ 335,000/
Woods Homes Sales (Teignbridge)

Woods Homes Sales (Teignbridge)

Phone


View ratings and reviews for this agent:
No entries were found

Monthly Budget Calculator

Can you afford this property?

Description

A three bedroom end of terrace house offering spacious family living, situated on the level with good access to local amenities.

Located in a cul-de-sac close to the local schools, shops and facilities is this spacious end of terrace house with a loft conversion forming the main bedroom En-suite.

The accommodation comprises of an entrance hallway, fitted kitchen, utility room, cloakroom, lounge, dining room, conservatory, three bedrooms, office space, En-suite shower room and a family bathroom. There is a wide driveway providing off road parking and a good-sized rear garden.

On approaching the property, the driveway takes you to the covered entrance and the UPVC front door.

The entrance hallway has a side aspect double glazed window, a small window to the front, a radiator, stairs rising to the first-floor landing and an under stairs storage cupboard. Doors to the lounge and kitchen.

The lounge has front aspect double glazed windows, a radiator, and a feature fireplace with marble over mantle, inset and surround, a tiled hearth, and an open fire.

The kitchen has a range of base and wall units, one housing the gas fired boiler, a three-drawer unit. Fitted working surfaces with tiled splash backs, and a circular sink unit with a double-glazed window over. Built in appliances include a four-ring gas hob with extraction above and a built-in electric oven. A door from the kitchen takes you into the utility room and a further doorway takes you into the dining room.

The dining room is open plan to the conservatory and has room for a dining table and chairs but is currently being utilised as a second lounge with the conservatory been used as the dining room. The conservatory has a polycarbonate roof, double glazed windows and UPVC sliding doors out to the garden.

The utility room has a UPVC door to the front and the rear aspect, wall mounted cupboards, a fitted worktop surface, plumbing and space for a washing machine and space for an upright fridge freezer. A door takes you into the cloakroom.

The cloakroom has a corner wall mounted wash hand basin, a low flush WC, an electric heated towel rail and a rear aspect obscured double glazed window.

The first-floor landing has doors to bedrooms two and three, the family bathroom and an office area where there is a radiator, UPVC double glazed window, a built-in cupboard and the staircase rising to the spacious main bedroom En-suite.

Bedrooms two and three are both good size doubles with radiators and double-glazed windows.

The family bathroom has a kidney shaped panelled bath with shower unit above a fitted shower screen, a pedestal wash hand basin, low flush WC, obscured double glazed windows and part tiled walls.

The main bedroom is a lovely spacious, light room with double glazed windows to the rear aspect, a Velux window to the front aspect, a built-in double wardrobe, eaves storage cupboards and a radiator.

The En-suite has a corner shower cubicle with tiled walls, a pedestal wash hand basin with a fitted mirror and shaver light over, a low flush WC, a rear aspect obscured double glazed window, heated towel rail and part tiled walls.

Outside, the good size rear garden has a decked seating area with wrought iron balustrade and a gate leading to the extensive lawn which has flower borders housing a variety of well-established mature shrubs and trees. There is a wooden garden shed and a disused pond which could be filled in to make a nice patio area.

Council Tax Band B for the period 01/04/2023 to 31/03/24 financial year is £1,761.13

Rooms

Reception rooms
1
Bed
3
Bathrooms
2

DETAILS

UPRN :  100040328268
FEATURES:
  • Spacious End Of Terrace House
  • Fitted Kitchen And Utility Room
  • Lounge and Dining Room
  • Office Space
  • Conservatory
  • Three Bedrooms (One With En-suite)
  • Family Bathroom
  • Good Sized Garden
  • Ample Driveway Parking
  • Cul-De-Sac Location

Important Information

Important Information

 Related properties

Nearby properties
4 bed detached bungalow for sale in Kingsteignton, Devon, TQ12
Buy £ 485,000/
Whiteway Road, Kingsteignton, Devon, TQ12 3HL, England
3 bed detached bungalow for sale in Kingsteignton, Devon, TQ12
Buy £ 450,000/
Greenbank Avenue, Kingsteignton, Devon, TQ12 3JX, England
3 bed terraced for sale in Kingsteignton, Devon, TQ12
Buy £ 272,500/
Hosegood Way, Kingsteignton, Devon, TQ12 3EP, England