Guide Price £285,000 3 bed semi-detached for sale in Abbotskerswell, Devon, TQ12 SSTC

  (0/5) 156
  • Photo 17
  • Photo 2
  • Photo 14
  • Photo 11
  • Photo 8
  • Photo 5
  • Photo 3
  • Photo 4
  • Photo 12
  • Photo 1
  • Photo 6
  • Photo 7
  • Photo 9
  • Photo 10
  • Photo 13
  • Photo 15
  • Photo 16
  • EPC
  • Floorplan_Floorplan1
1 Receptions
3 Beds
1 Baths
Guide Price £285,000 St. Marys Close, Abbotskerswell, Abbotskerswell, Devon, TQ12 5QF, England
Woods Homes Totness

Woods Homes Totness

Phone


View ratings and reviews for this agent:
No entries were found

Monthly Budget Calculator

Can you afford this property?

Description

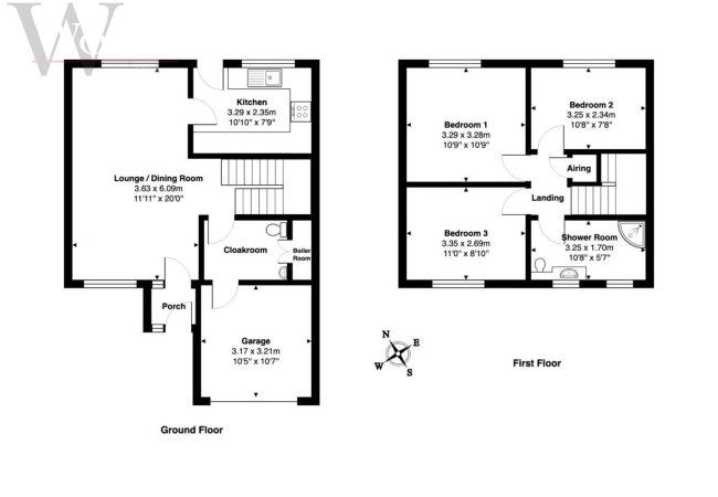
A semi detached home, in need of light refurbishment, situated in the heart of Abbotskerswell with benefits including a dual aspect lounge/dining room, ground floor cloakroom, three bedrooms, enclosed rear garden, off road parking and garage. EPC rating: D

A door at the front of the property opens into the entrance porch where there is space for coats and shoes and a door opening to the lounge/dining room. This spacious dual aspect room has large double glazed windows to the front and rear of the property, stone fire surround with inset gas fire, doors to the kitchen and the cloakroom and an opening to the stairs. The kitchen is fitted with a range of wall and base level units and drawers beneath work surfaces with tiled splash areas. There is a fitted electric hob and double oven, space for under counter fridge and space for dishwasher. There is a stainless steel sink and drainer set under a large double glazed window which enjoys views over the village and the surrounding countryside. A door from the kitchen leads to the rear garden.
The cloakroom is fitted with wash hand basin and low level WC and there are doors to the boiler room and the single garage which has power and light connected and has space and plumbing for washing machine and tumble dryer.
On the first floor are three double bedrooms and the family bathroom. Bedrooms one and three have double glazed windows to the rear of the property enjoying views over the village and to the countryside beyond and bedroom two has a double glazed window to the front of the property. The family bathroom is tiled and fitted with suite comprising low level WC with concealed plumbing, wash hand basin set into vanity unit with cupboard under and glazed corner shower cubicle. There are two double glazed windows.
Outside of the property and to the front there is a gravelled garden area and a driveway provides off road parking and access to the garage.
To the rear of the property and accessed from the kitchen and a gate at the side of the property is the garden, enclosed by timber fencing with lawned area, patio area and raised beds stocked with a variety of plants and shrubs. There is also a timber shed.

20 St. Marys Close is freehold and connected to all mains services with gas fired central heating.
Council Tax band: C - Teignbridge District Council.

Rooms

Reception rooms
1
Bed
3
Bathrooms
1

DETAILS

UPRN :  100040333883
Tenure type :  Freehold
FEATURES:
  • A semi detached home situated in the popular village of Abbotskerswell in need of some light refurbishment
  • Entrance porch
  • Kitchen
  • Cloakroom
  • Three double bedrooms
  • Shower room
  • Enclosed garden
  • Off road parking
  • Garage

 Related properties

Nearby properties
2 bed cottage for sale in Abbotskerswell, Devon, TQ12
Buy Guide Price £330,000
Well Cottages, Abbotskerswell, Abbotskerswell, Devon, TQ12 5NR, England
3 bed cottage for sale in Abbotskerswell, Devon, TQ12
Buy £ 439,500/
Horseshoe Cottage, Odle Hill, Abbotskerswell, Devon, TQ12 5NL, England
5 bed detached house for sale in Abbotskerswell, Devon, TQ12
Buy Guide Price £675,000
Forde Close, Abbotskerswell, Abbotskerswell, Devon, TQ12 5NN, England