3 bed terraced for sale in Totnes, Devon, TQ9 SSTC

Guide Price £415,000 Warland, Totnes, Devon, TQ9 5EL, England
  (0/5) / 121
  • Photo 15
  • Photo 7
  • Photo 9
  • Photo 16
  • Photo 6
  • Photo 1
  • Photo 3
  • Photo 11
  • Photo 17
  • Photo 2
  • Photo 4
  • Photo 5
  • Photo 8
  • Photo 10
  • Photo 18
  • EPC
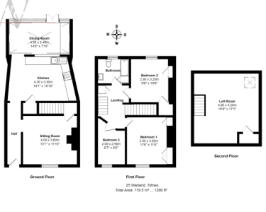
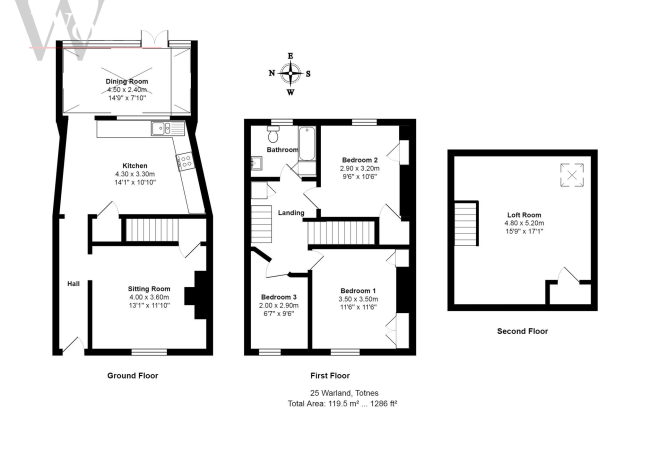
  • Floorplan_Floorplan1
1 Receptions
3 Beds
1 Baths
Guide Price £415,000
Woods Homes Totness

Woods Homes Totness

Phone


View ratings and reviews for this agent:
No entries were found

Monthly Budget Calculator

Can you afford this property?

Description

A well presented end of terrace cottage situated within a level walk of the town centre and amenities with benefits including three bedrooms, loft room and enclosed rear garden. EPC rating: E

A door at the front of the property leads into the entrance hall where there is ceramic tiled flooring and openings to the lounge and kitchen. The lounge has a fitted wood burning stove with shelving in recess, a multi pane sash window to the front of the property and a door opening to the staircase that rises to the first floor. The kitchen, with the continuation of ceramic flooring, is recently fitted with a range of wall and base level units with roll edge work surfaces and tiled splash areas. There is a larder cupboard, space for cooker and fridge freezer, space and plumbing for washing machine and an opening to the conservatory. This light and airy room has an exposed stone wall, floor to ceiling windows and double glazed French doors opening onto the rear garden.
On the first floor and accessed from the landing are doors to the three bedrooms, family bathroom and cupboard housing the central heating boiler. A ladder style staircase rises to the loft room. Bedroom one has a multi pane sash window to the front of the property, a built in storage cupboard and shelving, Victorian style fireplace and radiator. Bedroom two has a multi pane sash window to the rear of the property, built in wardrobe and shelving, Victorian style fireplace, painted floorboards and radiator. Bedroom three has a radiator and a multi pane sash window to the front of the property. The bathroom has been recently fitted with a Burlington suite comprising ball and claw free standing bath with thermostatically controlled raindrop shower over also with hand held attachment, pedestal wash hand basin and low level WC. There is part tiling to walls, an obscured multi pane window and heated towel rail/radiator.
The loft room has a sky light, exposed beams and storage into eaves.
Outside of the property and to the rear, the South facing garden is enclosed by stone walling and timber fencing and is laid to artificial grass for ease of maintenance. there is space for a variety of pots and planters and a wooden gate provides access to the rear. There is resident permit parking available.

25 Warland is freehold and connected to all mains services with gas fired central heating.
Council Tax band: C - South Hams District Council

Rooms

Reception rooms
1
Bed
3
Bathrooms
1

DETAILS

UPRN :  10004742978
FEATURES:
  • A well presented end of terrace Grade 11 Listed cottage situated within a close level walk of the town centre and amenities
  • Entrance hall
  • Kitchen
  • Conservatory
  • Three bedrooms
  • Bathroom recently fitted with Burlington suite
  • Loft room
  • Enclosed rear garden

 Related properties

Nearby properties
2 bed apartment for rent in Totnes, Devon, TQ9
Rent £ 900/PCM
The Workshop Flat, Ticklemore Street, Totnes, Devon, TQ9 5EL, England
4 bed terraced for sale in Totnes, Devon, TQ9
Buy £ 525,000/
The Forge, 27 Warland, Totnes, Devon, TQ9 5EL, England
2 bed terraced for sale in Totnes, Devon, TQ9
Buy £ 315,000/
Warland, Totnes, Devon, TQ9 5EL, England