4 bed detached house for sale in Kingsteignton, Devon, TQ12 Available

£ 485,000/
Abbotswood, Kingsteignton, Devon, TQ12 3AB, England
  (0/5) / 48
  • IMG_0524.JPEG
  • IMG_0314.JPEG
  • IMG_0319.JPEG
  • IMG_0340.JPEG
  • IMG_0331.JPEG
  • IMG_0353.JPEG
  • IMG_0396.JPEG
  • IMG_0409.JPEG
  • IMG_0468
  • IMG_0474
  • IMG_0490
  • IMG_0457.JPG
  • IMG_0385.JPEG
  • IMG_0394.JPEG
  • IMG_0424.JPEG
  • IMG_0442.JPEG
  • IMG_0328.JPG
  • IMG_0477
  • EPC
  • 44, Abbotswood, King
2 Receptions
4 Beds
2 Baths
£ 485,000/
Woods Homes Sales (Teignbridge)

Woods Homes Sales (Teignbridge)

Phone


View ratings and reviews for this agent:
No entries were found

Monthly Budget Calculator

Can you afford this property?

Description

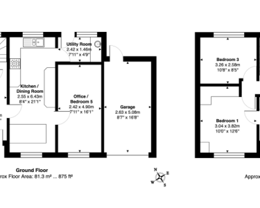
A spacious four/five bedroom detached house, situated in a sought after cul-de-sac. The accommodation benefits from two reception rooms a large kitchen, a utility room and a ground floor cloakroom. There is off road parking, an attached garage and secluded corner plot gardens with lawns, paved patios and decking.

On entering the property, the entrance hallway leads to the spacious living room, the ground floor cloakroom and the kitchen diner. The large living room features a focal fireplace incorporating a log burner. The Georgian style bay window to the front aspect and sliding patio doors out to the rear patio, allow for plenty of natural light to flood the room. The second reception room can be used as a formal dining room, an office or a fifth bedroom, depending on your needs. The open plan kitchen/dining room is perfect for family meals or entertaining and the integrated dishwasher makes clearing up a breeze, whilst the vast range of fitted base and wall units, drawer stacks and display cabinets allow for ample storage. Built in appliances include a four ring gas hob with electric oven under and an extractor hood over. There are Georgian style double glazed windows to the front and rear aspect and a one and a half bowl sink unit. A door takes you into the utility room where there is a fitted working surface incorporating a round sink unit, plumbing and space for a washing machine, base cabinets with drawers, wall cabinets, a double glazed window over looking the rear garden and a door out to the rear garden. The ground floor cloakroom has a low flush WC, vanity sink unit, radiator and a ceramic tiled floor. Upstairs, the main bedroom en-suite is a generous size and has a range of fitted bedroom furniture to include wardrobes and over head cupboards. The en-suite shower room has a low flush WC with concealed fittings, a vanity sink unit with cupboard under and a fully tiled shower cubicle. The three remaining bedrooms are all well-proportioned and serviced by the family bathroom. The family bathroom has a panelled bath with shower and fitted shower screen over, a low flush WC, a pedestal wash hand basin and an obscured double glazed Georgian style window. Outside, the property benefits from a good size corner plot garden with patio areas, lawns and decking. Offering a great deal of privacy it is perfect for relaxing or al fresco dining. There is space for a summerhouse and side access. The attached garage provides storage or parking and a driveway allows additional parking. The location of this property is highly desirable, with easy access to local amenities, schools, and transport links. Newton Abbot town centre is just a short drive away, offering a range of shops, restaurants, leisure facilities and a railway station. Overall, this spacious detached family home offers a fantastic opportunity for those looking to upsize or relocate to a desirable area. With its versatile living space and convenient location, this property is sure to be popular amongst buyers.

Rooms

Reception rooms
2
Bed
4
Bathrooms
2

DETAILS

Tenure type :  Freehold
FEATURES:
  • Spacious detached family home in sought after location
  • Four/five bedrooms - master with en-suite
  • Two reception rooms/bedroom five
  • Kitchen dining room
  • Utility room
  • Secluded garden
  • Garage and driveway parking